Como todos sabemos, las calderas industriales de petróleo / gas ahorran más energía y son más respetuosas con el medio ambiente que las calderas de carbón, por lo que el bloqueo de la chimenea de las calderas de gas rara vez ocurre en general. Sin embargo, si la caldera se usa durante mucho tiempo, también se acumulará una variedad de polvo de gases de combustión en la chimenea, de modo que los gases de combustión no se puedan volver a descargar, lo que aumentará el consumo de combustible, pero también reducirá la eficiencia del caldera de gas. Por lo tanto, para evitar este fenómeno, la chimenea debe limpiarse regularmente durante el uso de la caldera. El siguiente es un método simple para la limpieza de chimeneas, que EPCB resume en base a muchos años de experiencia en servicio al cliente. Este método es aplicable a calderas de vapor de tubo de fuego horizontal EPCB alimentadas con gasóleo / gas y calderas de agua caliente alimentadas con aceite / gas.
En primer lugar, los accesorios de la pared interior de la chimenea se golpean golpeando la chimenea hacia arriba y hacia abajo con una herramienta como un martillo.

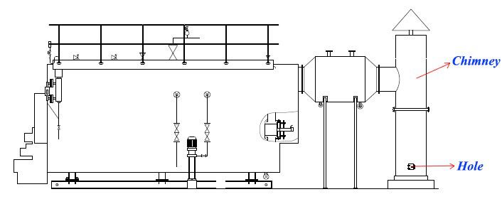
Después del golpe, se hace un agujero en la parte inferior de la chimenea. Los usuarios pueden hacer un agujero cuadrado simple y que se pueda abrir, de unos 20 cm * 20 cm de tamaño.


Luego, se usa agua del grifo para lavar la pared de la chimenea desde la parte superior de la chimenea, y las aguas residuales fluyen por los orificios hechos.
El método de fabricación del agujero abierto:

Como se muestra en la figura, se corta una placa cuadrada en la parte inferior de la chimenea con una máquina cortadora, que tiene un tamaño de aproximadamente 500px * 500px, formando un agujero cuadrado. Nota: La abertura debe estar lo más cerca posible del suelo para facilitar el drenaje.
Se sueldan dos canaletas en forma de U a ambos lados del orificio cortado de modo que después de limpiar la chimenea, la placa previamente cortada se pueda volver a insertar en las canaletas en forma de U.
El anterior es un método simple para limpiar la chimenea de la caldera, que solo pueden completar los operadores de la caldera. Y los usuarios no necesitan encontrar el equipo de limpieza profesional. Puede ahorrar mucho dinero a las empresas que utilizan calderas. Por supuesto, los operadores de calderas deben prestar atención al flujo de aguas residuales en el proceso de limpieza de las chimeneas, para evitar causar contaminación al medio ambiente circundante.